Характеристики
- Этажей всего 26
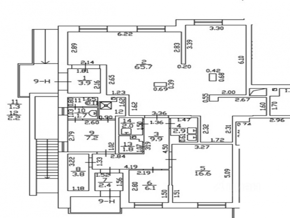
- Этаж 1
- Ближайшее метро Парнас
Похожие предложения
Ипотечный калькулятор
График средних цен по аренде коммерческой недвижимости в Выборгском районе
| Тип недвижимости | Средн. цена м2 | Изменение с 21.11.2024 | Разброс цен | Дата |
|---|---|---|---|---|
| Отдельно стоящие здания | 1 738 руб. | + 1 738 руб. | 381 933 ... 10 000 000 руб. за объект | 11.11.25 |
| 14 326 руб. | + 14 326 руб. | 381 933 ... 10 000 000 руб. за объект | 28.10.25 | |
| 11 513 руб. | + 11 513 руб. | 130 302 ... 10 000 000 руб. за объект | 14.10.25 | |
| Производственные помещения | 843 руб. | + 843 руб. | 94 177 ... 549 585 руб. за объект | 11.11.25 |
| 935 руб. | + 935 руб. | 94 177 ... 599 999 руб. за объект | 28.10.25 | |
| 863 руб. | + 863 руб. | 73 080 ... 549 999 руб. за объект | 14.10.25 | |
| Торговые помещения | 2 205 руб. | + 302 руб. | 30 001 ... 900 018 руб. за объект | 11.11.25 |
| 2 155 руб. | + 252 руб. | 30 001 ... 900 018 руб. за объект | 28.10.25 | |
| 2 320 руб. | + 417 руб. | 59 403 ... 787 500 руб. за объект | 14.10.25 |
Инфраструктура района
- Вальдорфская школа
- В созвучии с природой ребёнка
- Средняя общеобразовательная школа №483 с углубленным изучением информатики
- Средняя общеобразовательная школа №94 с углубленным изучением информатики
- Городская поликлиника №117
Материалы по теме
Запишись на онлайн просмотр объекта






