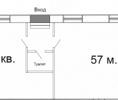
Характеристики
- Этажей всего 22
- Этаж -1
- Ближайшее метро Новочеркасская
Похожие предложения
Ипотечный калькулятор
График средних цен по аренде коммерческой недвижимости в Красногвардейском районе
| Тип недвижимости | Средн. цена м2 | Изменение с 09.01.2025 | Разброс цен | Дата |
|---|---|---|---|---|
| Торговые помещения | 2 084 руб. | + 525 руб. | 46 500 ... 518 400 руб. за объект | 23.12.25 |
| 1 828 руб. | + 269 руб. | 46 500 ... 417 200 руб. за объект | 09.12.25 | |
| 1 700 руб. | + 141 руб. | 25 000 ... 550 007 руб. за объект | 25.11.25 | |
| 1 467 руб. | - 92 руб. | 20 001 ... 880 000 руб. за объект | 11.11.25 | |
| 1 630 руб. | + 71 руб. | 20 001 ... 880 000 руб. за объект | 28.10.25 | |
| 1 761 руб. | + 202 руб. | 20 000 ... 880 000 руб. за объект | 14.10.25 |
Инфраструктура района
- Детский сад №43
- Детский сад №69 присмотра и оздоровления
- Школа-интернат для слепых и слабовидящих детей №1 им. К.К. Грота
- Специальная коррекционная школа-интернат №51 для детей-сирот и детей
- Клиническая инфекционная больница им. С.П. Боткина
- Клиническая городская больница №46 Святой Евгении
- Заневский парк
- Митрополичий сад
Материалы по теме
Запишись на онлайн просмотр объекта





