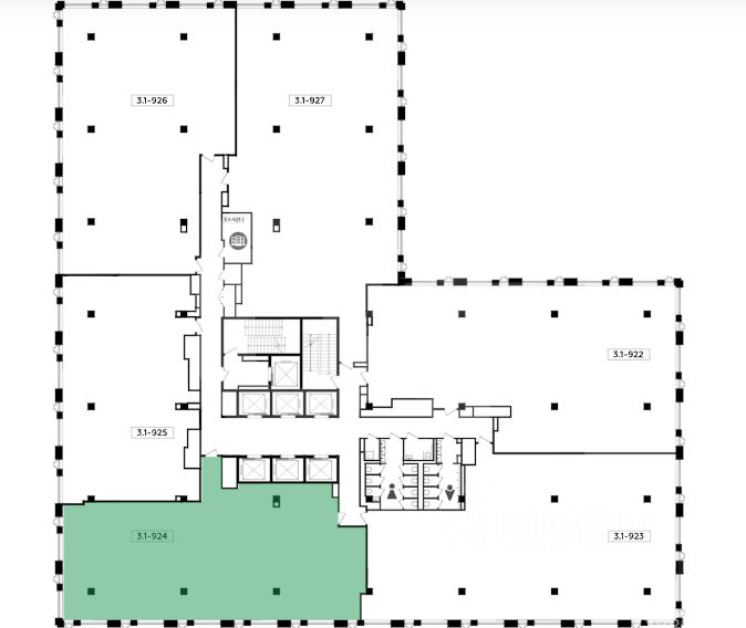
Характеристики
- Этаж 9
- Этажей всего 12
- Ближайшее метро Лихоборы
- Площадь комнат 309.00 кв. м
Похожие предложения
Ипотечный калькулятор
Инфраструктура района
- Британская международная школа
- Британская международная школа
- Гимназия №1576
- Гимназия №1592
- Детская инфекционная клиническая больница №6
- Детская инфекционная клиническая больница №6
- Тимирязевский парк (Парк МСХА им. К. А. Тимирязева)
- Парк имени Святослава Фёдорова
Материалы по теме
Запишись на онлайн просмотр объекта





