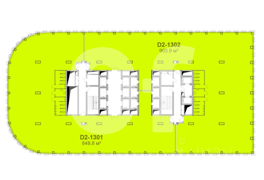
Характеристики
- Этаж 13
- Этажей всего 24
- Ближайшее метро Марьина Роща
- Площадь комнат 848.00 кв. м
Похожие предложения
Ипотечный калькулятор
График средних цен по аренде офисов в Марьиной роще
| Тип недвижимости | Средн. цена м2 | Изменение с 21.11.2024 | Разброс цен | Дата |
|---|---|---|---|---|
| Офисы | 3 149 руб. | + 1 364 руб. | 90 000 ... 2 464 120 руб. за объект | 11.11.25 |
| 3 377 руб. | + 1 592 руб. | 58 000 ... 5 994 500 руб. за объект | 28.10.25 | |
| 3 468 руб. | + 1 683 руб. | 60 000 ... 7 320 290 руб. за объект | 14.10.25 | |
| 3 684 руб. | + 1 899 руб. | 60 000 ... 5 855 420 руб. за объект | 30.09.25 | |
| 3 150 руб. | + 1 365 руб. | 52 400 ... 2 250 000 руб. за объект | 16.09.25 | |
| 2 584 руб. | + 799 руб. | 61 000 ... 5 855 420 руб. за объект | 02.09.25 |
Инфраструктура района
- Гимназия №1572
- Гимназия №1540
- Офтальмологическая клиническая больница
- Городская клиническая больница №63
- Сад Эрмитаж
- Сад Аквариум
Материалы по теме
Запишись на онлайн просмотр объекта





