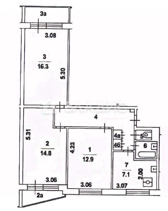
Характеристики
- Количество комнат 3
- Тип дома панельный
- Этаж 10
- Этажей всего 12
- Ближайшее метро Юго-Западная
- Студия нет
- Апартаменты нет
- Наличие балкона да
- Санузел раздельный с/у
- Площадь жилая 44.00 кв. м
- Площадь кухни 7.10 кв. м
- Отделка под ключ (чистовая)
- Вид из окон во двор
- Ипотека да
Похожие предложения
Ипотечный калькулятор
График средних цен по продаже трехкомнатных квартир в Тропарево-Никулино
| Тип недвижимости | Средн. цена м2 | Изменение с 21.11.2024 | Разброс цен | Дата |
|---|---|---|---|---|
| Квартиры вторичка | 470 203 руб. | + 34 687 руб. | 16 600 000 ... 84 000 000 руб. за объект | 11.11.25 |
| 477 004 руб. | + 41 487 руб. | 17 450 000 ... 84 000 000 руб. за объект | 28.10.25 | |
| 478 265 руб. | + 42 749 руб. | 17 300 000 ... 84 000 000 руб. за объект | 14.10.25 | |
| 471 028 руб. | + 35 511 руб. | 17 300 000 ... 83 950 000 руб. за объект | 30.09.25 | |
| 471 655 руб. | + 36 139 руб. | 17 750 000 ... 75 000 000 руб. за объект | 16.09.25 | |
| 457 793 руб. | + 22 277 руб. | 18 490 000 ... 77 000 000 руб. за объект | 02.09.25 |
Инфраструктура района
- Путь зерна
- Начальная школа-детский сад №1635
- Гимназия №1543
- Гимназия №1541
- Российская детская клиническая больница
- Российская детская клиническая больница
- Теплостанский парк
- Юго-западный лесопарк
Материалы по теме
Запишись на онлайн просмотр объекта









