Мы используем "cookies". Продолжая просмотр, Вы принимаете Пользовательское соглашение и Политику обработки персональных данных.

136 696 объектов недвижимости Санкт-Петербурга

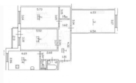
Продажа - 3-комн квартира, 90 кв. м. улица Лёни Голикова д. 47 к3

19 400 000 Р

215 556 Р за м2 (в у.е.)

247 997 $ | 210 655 €
курсы валют
Бесплатно оцени свою квартиру
  • 90.00 м2

    Общая

  • 13.00 м2

    Кухня

  • 2 из 10

    Этаж

Санкт-Петербург, Юго-Запад, Кировский, Ульянка, улица Лёни Голикова, д. 47 к3

на карте
  • Ветеранов пр. (1000 м)
Просторная трехкомнатная квартира, комнаты изолированные: 24, 18, 17. Квартира расположена внутри квартала, тихое место, рядом школа и детский сад. Идеальное место для семьи с детьми. Ранее сдавалась. В настоящий момент в комнатах поклеены новые обои, коридор и кухня подготовлены под поклейку обоев. Двери - массив, зашкурены, подготовлены под покраску. Ванная и туалет в порядке - плитка в отличном состоянии, как на фото, эмаль в ванной новая. Окна - двухкамерные стеклопакеты. Окна выходят во двор, на детские площадки. Лоджия с отделкой ... развернуть

Эта квартира на вторичке
в ипотеку

от 93 050 ₽ в месяц

26 предложений от 14 банков

Рассчитать и получить
одобрение онлайн

Информация по объекту недвижимости, собственниках, обременениях и аресте, выписка ЕГРН.
Перед заказом уточните у продавца по телефону точный адрес до квартиры или кадастровый номер.

Характеристики

  • Количество комнат 3
  • Этаж 2
  • Этажей всего 10
  • Ближайшее метро Проспект Ветеранов
  • Площадь кухни 13.00 кв. м

Похожие предложения

Продать Квартиры вторичка улица Лени Голикова, 47к3

19 200 000 Р

улица Лени Голикова 47к3

Продать Квартиры вторичка улица Лени Голикова, 52к2

17 500 000 Р

улица Лени Голикова 52к2

Продать Квартиры вторичка улица Лёни Голикова  52 к4

18 000 000 Р

улица Лёни Голикова , д. 52 к4

Продать Квартиры вторичка проспект Стачек, 90

16 500 000 Р

проспект Стачек 90

Продать Квартиры вторичка улица Зайцева, 17/23

13 350 000 Р

улица Зайцева 17/23

Продать Квартиры вторичка проспект Маршала Жукова, 48к1

23 100 000 Р

проспект Маршала Жукова 48к1

Продать Квартиры вторичка Дачный проспект, 2К2

15 450 000 Р

Дачный проспект 2К2

Продать Квартиры вторичка улица Лени Голикова, 15к5

17 600 000 Р

улица Лени Голикова 15к5

Продать Квартиры вторичка улица Трефолева, 3

21 500 000 Р

улица Трефолева 3

Продать Квартиры вторичка Двинская улица, 8К3

13 000 000 Р

Двинская улица 8К3

Продать Квартиры вторичка улица Зайцева, 37

13 500 000 Р

улица Зайцева 37

Продать Квартиры вторичка улица Лени Голикова, 15к6

14 500 000 Р

улица Лени Голикова 15к6

Продать Квартиры вторичка бульвар Новаторов, 28

15 500 000 Р

бульвар Новаторов 28

Продать Квартиры вторичка Дачный проспект, 23К4

14 650 000 Р

Дачный проспект 23К4

Продать Квартиры вторичка улица Танкиста Хрустицкого, 108

18 130 000 Р

улица Танкиста Хрустицкого 108

Продать Квартиры вторичка проспект Маршала Жукова, 58к4

16 500 000 Р

проспект Маршала Жукова 58к4

Продать Квартиры вторичка улица Гладкова, 18

16 500 000 Р

улица Гладкова 18

Продать Квартиры вторичка Ленинский проспект, 114

18 700 000 Р

Ленинский проспект 114

Продать Квартиры вторичка проспект Маршала Жукова, 32К1

13 500 000 Р

проспект Маршала Жукова 32К1

Продать Квартиры вторичка проспект Стачек, 21

22 500 000 Р

проспект Стачек 21

Ипотечный калькулятор

Стоимость недвижимости

Первоначальный взнос

Ставка

Срок

График средних цен по продаже трехкомнатных квартир в Кировском районе

Тип недвижимости Средн. цена м2 Изменение с 16.01.2025 Разброс цен Дата
Квартиры вторичка 187 028 руб. + 14 802 руб. 6 149 000 ... 29 000 000 руб. за объект 23.12.25
185 455 руб. + 13 229 руб. 6 000 000 ... 29 900 000 руб. за объект 09.12.25
183 975 руб. + 11 749 руб. 6 100 000 ... 29 900 000 руб. за объект 25.11.25
182 751 руб. + 10 525 руб. 5 950 000 ... 31 700 000 руб. за объект 11.11.25
181 057 руб. + 8 831 руб. 6 090 000 ... 32 000 000 руб. за объект 28.10.25
182 057 руб. + 9 831 руб. 6 000 000 ... 31 700 000 руб. за объект 14.10.25

Инфраструктура района

Детские сады

  • Прогимназия №675
  • Прогимназия №675

Школы

  • Средняя общеобразовательная школа №251
  • Средняя общеобразовательная школа №506 с углубленным изучением немецкого языка

Медицинские учреждения

  • Городская поликлиника №88
  • Городская поликлиника №88

Парки

  • Парк «Александрино»
  • Шереметевский сквер

Запишись на онлайн просмотр объекта

Указать критерии поиска