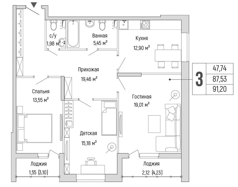
Характеристики
- Количество комнат для продажи/аренды 3
- Количество комнат всего 3
- Этаж 1
- Этажей всего 9
- Апартаменты нет
- Высота потолков 3.00 м
- квартал 4
- год 2025
- Отделка без отделки
Похожие предложения
Ипотечный калькулятор
График средних цен по продаже трехкомнатных квартир в Городском округе Красногорск
| Тип недвижимости | Средн. цена м2 | Изменение с 04.02.2025 | Разброс цен | Дата |
|---|---|---|---|---|
| Квартиры в новостройке | 277 214 руб. | + 35 872 руб. | 11 988 500 ... 31 702 800 руб. за объект | 14.01.26 |
| 274 940 руб. | + 33 597 руб. | 11 917 700 ... 29 892 200 руб. за объект | 23.12.25 | |
| 277 730 руб. | + 36 387 руб. | 11 817 200 ... 31 702 800 руб. за объект | 09.12.25 | |
| Квартиры вторичка | 227 431 руб. | + 25 571 руб. | 9 000 000 ... 40 000 000 руб. за объект | 14.01.26 |
| 221 620 руб. | + 19 759 руб. | 8 800 000 ... 35 000 000 руб. за объект | 23.12.25 | |
| 220 767 руб. | + 18 906 руб. | 8 800 000 ... 34 000 000 руб. за объект | 09.12.25 |
Материалы по теме
Запишись на онлайн просмотр объекта







