Характеристики
- Количество комнат 1
- Тип дома кирпичный
- Этаж 2
- Этажей всего 11
- Ближайшее метро Беговая
- До метро 28 мин
- До метро, транспорт пешком
- Студия нет
- Апартаменты нет
- Санузел раздельный с/у
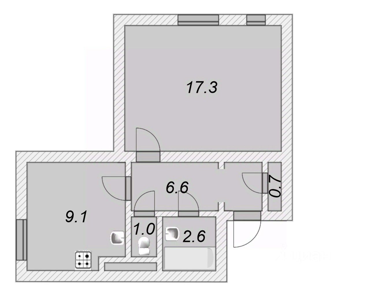
- Площадь жилая 17.30 кв. м
- Площадь кухни 9.10 кв. м
- Отделка под ключ (чистовая)
- Ипотека да
Похожие предложения
Ипотечный калькулятор
График средних цен по продаже однокомнатных квартир в Курортном районе
| Тип недвижимости | Средн. цена м2 | Изменение с 05.12.2024 | Разброс цен | Дата |
|---|---|---|---|---|
| Квартиры в новостройке | 466 743 руб. | + 114 898 руб. | 8 026 240 ... 39 871 000 руб. за объект | 25.11.25 |
| 463 668 руб. | + 111 823 руб. | 7 986 240 ... 39 871 000 руб. за объект | 11.11.25 | |
| 458 440 руб. | + 106 595 руб. | 8 076 480 ... 39 871 000 руб. за объект | 28.10.25 | |
| Квартиры вторичка | 271 959 руб. | + 15 934 руб. | 4 800 000 ... 38 251 000 руб. за объект | 25.11.25 |
| 265 169 руб. | + 9 143 руб. | 4 600 000 ... 22 660 000 руб. за объект | 11.11.25 | |
| 265 244 руб. | + 9 219 руб. | 4 600 000 ... 22 660 000 руб. за объект | 28.10.25 |
Инфраструктура района
- Детский сад №12
- Детский сад №23
- Олимпийский резерв
- Средняя общеобразовательная школа №545
- Городская больница №40
- Городская больница №40
- Парк Усадьбы Авенариуса П.И.
- Парк Инструментальщиков
Материалы по теме
Запишись на онлайн просмотр объекта








