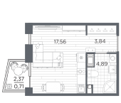
Характеристики
- Количество комнат для продажи/аренды 1
- Количество комнат всего 1
- Этаж 12
- Этажей всего 13
- До метро 12 мин
- До метро, транспортом пешком
- Наличие балкона да
- Студия да
- Апартаменты нет
- Площадь жилая 17.56 кв. м
- Площадь комнат 17.56 кв. м
- Площадь санузла 4.89 кв. м
- Высота потолков 2.70 м
- квартал 4
- год 2027
- Отделка под ключ (чистовая)
Похожие предложения
Ипотечный калькулятор
График средних цен по продаже студий в Калининском районе
| Тип недвижимости | Средн. цена м2 | Изменение с 26.12.2024 | Разброс цен | Дата |
|---|---|---|---|---|
| Квартиры в новостройке | 397 745 руб. | + 57 047 руб. | 8 188 520 ... 12 342 100 руб. за объект | 09.12.25 |
| 385 383 руб. | + 44 686 руб. | 7 903 210 ... 11 967 300 руб. за объект | 25.11.25 | |
| 378 114 руб. | + 37 417 руб. | 7 698 440 ... 11 612 600 руб. за объект | 11.11.25 | |
| Квартиры вторичка | 283 629 руб. | + 14 601 руб. | 2 550 000 ... 10 300 000 руб. за объект | 09.12.25 |
| 282 813 руб. | + 13 785 руб. | 2 550 000 ... 10 300 000 руб. за объект | 25.11.25 | |
| 281 618 руб. | + 12 589 руб. | 2 730 000 ... 10 300 000 руб. за объект | 11.11.25 |
Инфраструктура района
- Детский сад №29
- Детский сад №32
- Школа-интернат №1 I вида для глухих детей
- Школа-интернат №1 I вида для глухих детей
- Клиника военно-полевой терапии
- Клиника и кафедра факультетской хирургии
- Сад Михайловской больницы
- Сад на Кондратьевском пр.
Материалы по теме
Запишись на онлайн просмотр объекта





