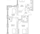
Характеристики
- Количество комнат для продажи/аренды 4
- Количество комнат всего 4
- Этаж 47
- Этажей всего 51
- До метро 12 мин
- До метро, транспортом пешком
- Апартаменты нет
- Высота потолков 3.10 м
- квартал 4
- год 2027
- Евро да
- Отделка без отделки
Ипотечный калькулятор
График средних цен по продаже многокомнатных квартир в Хорошевском районе
| Тип недвижимости | Средн. цена м2 | Изменение с 21.11.2024 | Разброс цен | Дата |
|---|---|---|---|---|
| Квартиры в новостройке | 949 696 руб. | + 243 691 руб. | 67 804 800 ... 374 048 000 руб. за объект | 11.11.25 |
| 952 754 руб. | + 246 749 руб. | 67 804 800 ... 374 048 000 руб. за объект | 28.10.25 | |
| 942 488 руб. | + 236 483 руб. | 67 804 800 ... 374 048 000 руб. за объект | 14.10.25 | |
| Квартиры вторичка | 654 125 руб. | - 72 801 руб. | 40 000 000 ... 240 000 000 руб. за объект | 11.11.25 |
| 650 600 руб. | - 76 326 руб. | 40 000 000 ... 240 000 000 руб. за объект | 28.10.25 | |
| 661 771 руб. | - 65 154 руб. | 40 000 000 ... 240 000 000 руб. за объект | 14.10.25 |
Инфраструктура района
- Прогимназия
- Прогимназия №1672
- Свобода Слова
- ART-English
- Детская городская клиническая больница №9 им. Г.Н. Сперанского
- Детская городская клиническая больница №9 им. Г.Н. Сперанского
- Фили детский парк
- Красная Пресня
Материалы по теме
Запишись на онлайн просмотр объекта





