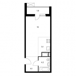
Характеристики
- Количество комнат для продажи/аренды 1
- Количество комнат всего 1
- Этаж 17
- Этажей всего 24
- Ближайшее метро Волоколамская
- Наличие балкона да
- Студия да
- Наличие лифта пассажирский лифт
- Санузел совмещенный с/у
- Площадь жилая 16.00 кв. м
- Площадь кухни 5.10 кв. м
- Высота потолков 2.7 м
- Дом сдан да
- квартал 1
- год 2022
- Отделка без отделки
- Наличие парковки да
- Шоссе (направление) Пятницкое шоссе
- Расстояние по шоссе до МКАД/КАД 2 км
- Ипотека да
Похожие предложения
Ипотечный калькулятор
График средних цен по продаже студий в Митино
| Тип недвижимости | Средн. цена м2 | Изменение с 04.03.2025 | Разброс цен | Дата |
|---|---|---|---|---|
| Квартиры в новостройке | 401 369 руб. | + 21 187 руб. | 8 544 910 ... 11 638 700 руб. за объект | 24.02.26 |
| 398 436 руб. | + 18 254 руб. | 9 201 870 ... 11 674 900 руб. за объект | 10.02.26 | |
| 395 147 руб. | + 14 965 руб. | 7 403 070 ... 11 674 900 руб. за объект | 29.01.26 | |
| 397 886 руб. | + 17 704 руб. | 7 403 070 ... 11 596 500 руб. за объект | 14.01.26 | |
| 369 271 руб. | - 10 911 руб. | 7 324 280 ... 11 499 400 руб. за объект | 23.12.25 | |
| 365 823 руб. | - 14 359 руб. | 7 283 640 ... 11 499 400 руб. за объект | 09.12.25 |
Инфраструктура района
- Союз
- Прогимназия №1782
- Гимназия №1544 с дошкольным отделением
- Гимназия №1538
- Тушинская городская детская больница
- Тушинская городская детская больница
- Митинский ландшафтный парк
- Новогорский лесопарк
Материалы по теме
Запишись на онлайн просмотр объекта











.jpg)