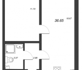
Характеристики
- Количество комнат для продажи/аренды 1
- Количество комнат всего 1
- Этаж 14
- Этажей всего 25
- До метро 5 мин
- До метро, транспортом на автобусе
- Студия да
- Апартаменты нет
- Площадь жилая 19.65 кв. м
- Площадь комнат 19.65 кв. м
- Площадь санузла 3.62 кв. м
- Высота потолков 2.55 м
- квартал 4
- год 2026
- Отделка под ключ (чистовая)
Похожие предложения
Ипотечный калькулятор
График средних цен по продаже студий в Красносельском районе
| Тип недвижимости | Средн. цена м2 | Изменение с 26.12.2024 | Разброс цен | Дата |
|---|---|---|---|---|
| Квартиры в новостройке | 336 633 руб. | + 68 882 руб. | 5 779 810 ... 8 724 390 руб. за объект | 09.12.25 |
| 332 676 руб. | + 64 925 руб. | 5 727 720 ... 8 636 160 руб. за объект | 25.11.25 | |
| 331 129 руб. | + 63 378 руб. | 5 699 800 ... 8 636 160 руб. за объект | 11.11.25 | |
| Квартиры вторичка | 226 047 руб. | + 12 850 руб. | 4 300 000 ... 7 797 000 руб. за объект | 09.12.25 |
| 225 855 руб. | + 12 658 руб. | 4 000 000 ... 7 500 000 руб. за объект | 25.11.25 | |
| 220 993 руб. | + 7 797 руб. | 4 000 000 ... 7 500 000 руб. за объект | 11.11.25 |
Инфраструктура района
- Прогимназия №675
- Прогимназия №675
- Молодежный дом-СПб
- Средняя общеобразовательная школа №551
- Городская поликлиника №88
- Городская поликлиника №88
- Шереметевский сквер
- Парк Дачи Н. П. Шереметьева «Ульянка»
Материалы по теме
Запишись на онлайн просмотр объекта





