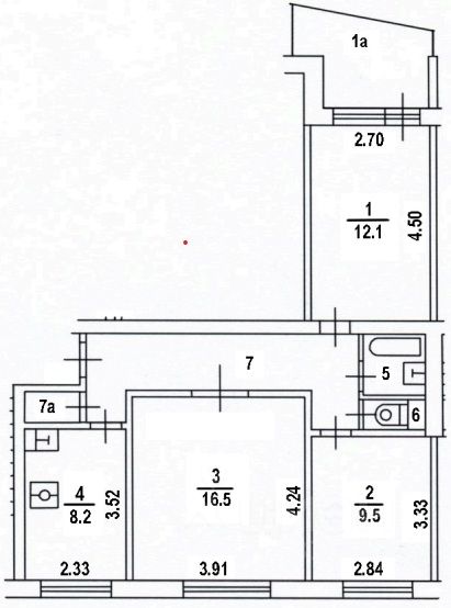
Характеристики
- Количество комнат 3
- Тип дома панельный
- Этаж 5
- Этажей всего 9
- Ближайшее метро Щукинская
- Студия нет
- Апартаменты нет
- Наличие балкона да
- Санузел раздельный с/у
- Площадь жилая 38.10 кв. м
- Площадь кухни 8.50 кв. м
- Отделка без отделки
- Ипотека да
Похожие предложения
Ипотечный калькулятор
График средних цен по продаже трехкомнатных квартир в Хорошево-Мневниках
| Тип недвижимости | Средн. цена м2 | Изменение с 21.01.2025 | Разброс цен | Дата |
|---|---|---|---|---|
| Квартиры в новостройке | 635 100 руб. | + 154 980 руб. | 29 732 300 ... 141 687 000 руб. за объект | 14.01.26 |
| 634 061 руб. | + 153 941 руб. | 29 835 200 ... 141 687 000 руб. за объект | 23.12.25 | |
| 636 184 руб. | + 156 063 руб. | 29 513 700 ... 141 532 000 руб. за объект | 09.12.25 | |
| Квартиры вторичка | 530 316 руб. | + 103 279 руб. | 19 000 000 ... 128 500 000 руб. за объект | 14.01.26 |
| 513 518 руб. | + 86 481 руб. | 17 500 000 ... 128 500 000 руб. за объект | 23.12.25 | |
| 506 400 руб. | + 79 363 руб. | 17 500 000 ... 120 000 000 руб. за объект | 09.12.25 |
Инфраструктура района
- Морозко
- Эрудит
- Гимназия №1593
- Гимназия №1522
- Городская клиническая больница №67
- Городская клиническая больница №67
- Серебряный Бор
Материалы по теме
Запишись на онлайн просмотр объекта







