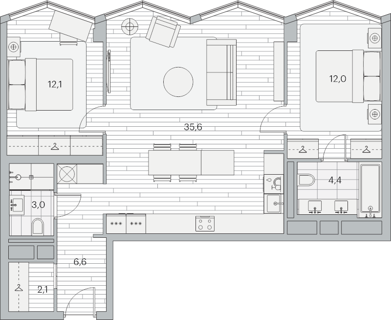
Характеристики
- Количество комнат для продажи/аренды 2
- Количество комнат всего 2
- Этаж 7
- Этажей всего 26
- До метро 25 мин
- До метро, транспортом пешком
- Апартаменты нет
- Площадь жилая 24.10 кв. м
- Площадь комнат 12.10 кв. м
- Площадь кухни 35.60 кв. м
- Высота потолков 3.00 м
- квартал 1
- год 2025
- Евро да
- Отделка без отделки
Ипотечный калькулятор
График средних цен по продаже двухкомнатных квартир в районе Филевского парка
| Тип недвижимости | Средн. цена м2 | Изменение с 26.12.2024 | Разброс цен | Дата |
|---|---|---|---|---|
| Квартиры в новостройке | 606 548 руб. | + 110 738 руб. | 29 883 600 ... 64 936 900 руб. за объект | 09.12.25 |
| 608 198 руб. | + 112 388 руб. | 29 822 700 ... 64 936 900 руб. за объект | 25.11.25 | |
| 612 396 руб. | + 116 586 руб. | 28 823 000 ... 64 936 900 руб. за объект | 11.11.25 | |
| Квартиры вторичка | 509 634 руб. | + 55 204 руб. | 15 200 000 ... 52 500 000 руб. за объект | 09.12.25 |
| 505 363 руб. | + 50 932 руб. | 16 000 000 ... 50 000 000 руб. за объект | 25.11.25 | |
| 504 339 руб. | + 49 908 руб. | 15 000 000 ... 49 500 000 руб. за объект | 11.11.25 |
Инфраструктура района
- Прогимназия
- Гимназия №1567
- Гимназия №1522
- Наркологическая клиническая больница №17
- Городская клиническая больница №51
- Парк Победы
- Фили
Материалы по теме
Запишись на онлайн просмотр объекта









