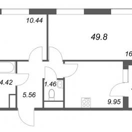
Характеристики
- Количество комнат для продажи/аренды 2
- Количество комнат всего 2
- Этаж 10
- Этажей всего 13
- До метро 10 мин
- До метро, транспортом пешком
- Наличие балкона да
- Апартаменты нет
- Площадь жилая 26.87 кв. м
- Площадь комнат 16.43 кв. м
- Площадь кухни 9.95 кв. м
- Высота потолков 2.73 м
- квартал 2
- год 2028
- Отделка под ключ (чистовая)
Похожие предложения
Ипотечный калькулятор
График средних цен по продаже двухкомнатных квартир в Фрунзенском районе
| Тип недвижимости | Средн. цена м2 | Изменение с 18.02.2025 | Разброс цен | Дата |
|---|---|---|---|---|
| Квартиры в новостройке | 390 465 руб. | + 58 225 руб. | 16 213 500 ... 27 211 200 руб. за объект | 29.01.26 |
| 384 747 руб. | + 52 507 руб. | 16 052 900 ... 27 759 000 руб. за объект | 14.01.26 | |
| 383 116 руб. | + 50 876 руб. | 16 034 200 ... 27 759 000 руб. за объект | 23.12.25 | |
| Квартиры вторичка | 220 139 руб. | + 21 656 руб. | 6 500 000 ... 26 990 000 руб. за объект | 29.01.26 |
| 221 586 руб. | + 23 103 руб. | 6 700 000 ... 26 000 000 руб. за объект | 14.01.26 | |
| 221 190 руб. | + 22 708 руб. | 6 800 000 ... 26 000 000 руб. за объект | 23.12.25 |
Инфраструктура района
- Прогимназия №698
- Детский сад №24
- Школа-интернат №37 VIII вида для обучающихся
- Средняя общеобразовательная школа №310
- НИИ скорой помощи им. И.И. Джанелидзе
- Городская больница №23
- Парк между Бухарестской и Софийской ул.
- Парк Интернационалистов
Материалы по теме
Запишись на онлайн просмотр объекта




