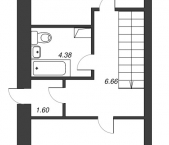
Характеристики
- Количество комнат для продажи/аренды 3
- Количество комнат всего 3
- Этаж 1
- Этажей всего 2
- Апартаменты нет
- Площадь жилая 7.85 кв. м
- Площадь комнат 7.85 кв. м
- Площадь кухни 12.56 кв. м
- Площадь санузла 4.95 кв. м
- Высота потолков 2.80 м
- квартал 1
- год 2028
- Отделка предчистовая
Похожие предложения
Ипотечный калькулятор
График средних цен по продаже трехкомнатных квартир в Тосненском районе
| Тип недвижимости | Средн. цена м2 | Изменение с 18.02.2025 | Разброс цен | Дата |
|---|---|---|---|---|
| Квартиры вторичка | 99 831 руб. | - 3 905 руб. | 1 600 000 ... 14 900 000 руб. за объект | 29.01.26 |
| 108 375 руб. | + 4 639 руб. | 2 700 000 ... 16 000 000 руб. за объект | 14.01.26 | |
| 101 802 руб. | - 1 935 руб. | 1 999 000 ... 16 000 000 руб. за объект | 23.12.25 | |
| 100 540 руб. | - 3 197 руб. | 1 999 000 ... 16 000 000 руб. за объект | 09.12.25 | |
| 102 674 руб. | - 1 063 руб. | 2 700 000 ... 15 000 000 руб. за объект | 25.11.25 | |
| 99 370 руб. | - 4 366 руб. | 1 690 000 ... 15 000 000 руб. за объект | 11.11.25 |
Инфраструктура района
- Детский сад №23
- Федоровская средняя общеобразовательная школа
- Амбулатория
Материалы по теме
Запишись на онлайн просмотр объекта










