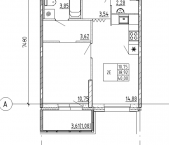
Характеристики
- Количество комнат для продажи/аренды 2
- Количество комнат всего 2
- Тип дома монолитный
- Этаж 21
- Этажей всего 24
- До метро 19 мин
- До метро, транспортом на автобусе
- Наличие балкона да
- Наличие лифта пассажирский лифт
- Санузел 2 санузла с/у
- Площадь жилая 19.81 кв. м
- Площадь кухни 19.97 кв. м
- Высота потолков 2.62 м
- квартал 4
- год 2027
- Отделка под ключ (чистовая)
- Наличие парковки да
- Вид из окон во двор
- Расстояние по шоссе до МКАД/КАД 10 км
- Ипотека да
Ипотечный калькулятор
График средних цен по продаже двухкомнатных квартир в Всеволожском районе
| Тип недвижимости | Средн. цена м2 | Изменение с 26.12.2024 | Разброс цен | Дата |
|---|---|---|---|---|
| Квартиры в новостройке | 168 298 руб. | + 13 137 руб. | 6 840 050 ... 13 837 500 руб. за объект | 09.12.25 |
| 167 444 руб. | + 12 283 руб. | 6 800 000 ... 14 041 500 руб. за объект | 25.11.25 | |
| 166 818 руб. | + 11 657 руб. | 6 795 200 ... 14 329 000 руб. за объект | 11.11.25 | |
| Квартиры вторичка | 152 723 руб. | + 12 043 руб. | 4 100 000 ... 13 490 000 руб. за объект | 09.12.25 |
| 152 529 руб. | + 11 850 руб. | 4 180 000 ... 13 600 000 руб. за объект | 25.11.25 | |
| 151 766 руб. | + 11 086 руб. | 4 180 000 ... 13 500 000 руб. за объект | 11.11.25 |
Инфраструктура района
- Детский сад №61
- Детский сад №59
- Ленинградский областной наркологический диспансер
Материалы по теме
Запишись на онлайн просмотр объекта








