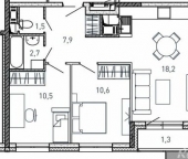
Характеристики
- Количество комнат для продажи/аренды 2
- Количество комнат всего 2
- Тип дома кирпично-монолитный
- Этаж 16
- Этажей всего 17
- Состояние объекта требует ремонта
- До метро 17 мин
- До метро, транспортом на автобусе
- Площадь жилая 43.44 кв. м
- Высота потолков 2.72 м
- квартал 3
- год 2024
Ипотечный калькулятор
График средних цен по продаже двухкомнатных квартир в Балашихе
| Тип недвижимости | Средн. цена м2 | Изменение с 26.12.2024 | Разброс цен | Дата |
|---|---|---|---|---|
| Квартиры в новостройке | 235 745 руб. | + 56 441 руб. | 11 070 700 ... 16 206 200 руб. за объект | 09.12.25 |
| 224 374 руб. | + 45 070 руб. | 10 842 700 ... 15 634 800 руб. за объект | 25.11.25 | |
| 208 418 руб. | + 29 113 руб. | 9 740 700 ... 15 634 800 руб. за объект | 11.11.25 | |
| Квартиры вторичка | 163 231 руб. | + 8 045 руб. | 5 500 000 ... 14 300 000 руб. за объект | 09.12.25 |
| 162 388 руб. | + 7 201 руб. | 5 400 000 ... 14 100 000 руб. за объект | 25.11.25 | |
| 161 943 руб. | + 6 757 руб. | 5 300 000 ... 14 100 000 руб. за объект | 11.11.25 |
Инфраструктура района
- Гимназия №3
- Гимназия №3
- Балашихинская центральная районная больница
- Городская детская поликлиника №11
Материалы по теме
Запишись на онлайн просмотр объекта










