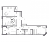
Характеристики
- Количество комнат для продажи/аренды 3
- Количество комнат всего 3
- Этаж 16
- Этажей всего 23
- До метро 10 мин
- До метро, транспортом пешком
- Апартаменты нет
- Площадь жилая 45.30 кв. м
- Площадь комнат 18.30 кв. м
- Площадь кухни 14.00 кв. м
- Высота потолков 2.95 м
- квартал 3
- год 2028
- Отделка без отделки
Похожие предложения
Ипотечный калькулятор
График средних цен по продаже трехкомнатных квартир в Печатниках
| Тип недвижимости | Средн. цена м2 | Изменение с 18.03.2025 | Разброс цен | Дата |
|---|---|---|---|---|
| Квартиры вторичка | 270 194 руб. | + 16 171 руб. | 1 870 000 ... 27 000 000 руб. за объект | 24.02.26 |
| 303 860 руб. | + 49 837 руб. | 15 500 000 ... 21 499 000 руб. за объект | 10.02.26 | |
| 286 706 руб. | + 32 683 руб. | 4 000 000 ... 27 000 000 руб. за объект | 29.01.26 | |
| 272 400 руб. | + 18 377 руб. | 3 800 000 ... 27 000 000 руб. за объект | 14.01.26 | |
| 279 058 руб. | + 25 035 руб. | 3 800 000 ... 27 000 000 руб. за объект | 23.12.25 | |
| 278 080 руб. | + 24 057 руб. | 5 400 000 ... 24 000 000 руб. за объект | 09.12.25 |
Инфраструктура района
- Прогимназия №1893
- Центр образования №1421
- Практический английский
- Глоссологус
- Центральная клиническая больница №6
- Городская клиническая больница №68
- Парк «Печатники» (Печатниковский парк)
- Люблино
Материалы по теме
Запишись на онлайн просмотр объекта







