Характеристики
- Количество комнат для продажи/аренды 1
- Количество комнат всего 1
- Этаж 6
- Этажей всего 28
- До метро 20 мин
- До метро, транспортом пешком
- Апартаменты нет
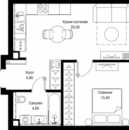
- Площадь жилая 13.40 кв. м
- Площадь комнат 13.40 кв. м
- Площадь кухни 20.00 кв. м
- Площадь санузла 4.60 кв. м
- Высота потолков 2.85 м
- квартал 3
- год 2027
- Евро да
- Отделка без отделки
Похожие предложения
Ипотечный калькулятор
График средних цен по продаже однокомнатных квартир в Покровском-Стрешнево
| Тип недвижимости | Средн. цена м2 | Изменение с 21.11.2024 | Разброс цен | Дата |
|---|---|---|---|---|
| Квартиры в новостройке | 589 910 руб. | + 120 422 руб. | 15 014 400 ... 41 935 700 руб. за объект | 11.11.25 |
| 589 647 руб. | + 120 159 руб. | 14 660 000 ... 41 935 700 руб. за объект | 28.10.25 | |
| 581 513 руб. | + 112 026 руб. | 14 327 900 ... 41 825 000 руб. за объект | 14.10.25 | |
| Квартиры вторичка | 454 868 руб. | + 101 121 руб. | 9 500 000 ... 38 950 000 руб. за объект | 11.11.25 |
| 459 750 руб. | + 106 003 руб. | 11 150 000 ... 39 000 000 руб. за объект | 28.10.25 | |
| 451 017 руб. | + 97 270 руб. | 9 900 900 ... 39 000 000 руб. за объект | 14.10.25 |
Инфраструктура района
- Эрудит
- Союз
- Гимназия №1519 с дошкольным отделением
- Гимназия №1519 с дошкольным отделением
- ФМБЦ
- ФМБЦ
- Покровское-Стрешнево
- Сходненская чаша (Сходненский ковш)
Материалы по теме
Запишись на онлайн просмотр объекта






