Характеристики
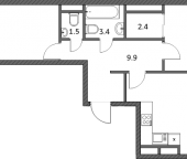
- Количество комнат для продажи/аренды 3
- Количество комнат всего 3
- Этаж 11
- Этажей всего 19
- До метро 3 мин
- До метро, транспортом пешком
- Апартаменты нет
- Площадь жилая 47.70 кв. м
- Площадь комнат 18.10 кв. м
- Площадь кухни 14.00 кв. м
- Высота потолков 2.70 м
- квартал 4
- год 2024
- Отделка без отделки
Похожие предложения
Ипотечный калькулятор
График средних цен по продаже трехкомнатных квартир в Внуковском поселении
| Тип недвижимости | Средн. цена м2 | Изменение с 04.03.2025 | Разброс цен | Дата |
|---|---|---|---|---|
| Квартиры в новостройке | 294 972 руб. | + 43 615 руб. | 21 978 600 ... 28 688 100 руб. за объект | 24.02.26 |
| 310 885 руб. | + 59 528 руб. | 22 146 700 ... 28 812 700 руб. за объект | 29.01.26 | |
| 310 962 руб. | + 59 605 руб. | 22 462 700 ... 28 812 700 руб. за объект | 14.01.26 | |
| Квартиры вторичка | 329 640 руб. | + 43 835 руб. | 15 800 000 ... 49 500 000 руб. за объект | 24.02.26 |
| 239 987 руб. | - 45 819 руб. | 14 950 000 ... 19 800 000 руб. за объект | 29.01.26 | |
| 251 795 руб. | - 34 011 руб. | 15 700 000 ... 19 990 000 руб. за объект | 14.01.26 |
Инфраструктура района
- Prime School
- Городская поликлиника №212
- Детская поликлиника №144
- Чоботовский лес
Запишись на онлайн просмотр объекта





