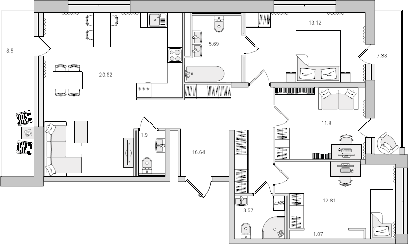
Характеристики
- Количество комнат для продажи/аренды 3
- Количество комнат всего 3
- Этаж 14
- Этажей всего 15
- До метро 15 мин
- До метро, транспортом на автобусе
- Наличие балкона да
- Апартаменты нет
- Площадь жилая 37.59 кв. м
- Площадь комнат 13.12 кв. м
- Площадь кухни 20.62 кв. м
- Высота потолков 2.75 м
- квартал 4
- год 2023
- Евро да
- Отделка под ключ (чистовая)
Похожие предложения
Ипотечный калькулятор
График средних цен по продаже трехкомнатных квартир в Приморском районе
| Тип недвижимости | Средн. цена м2 | Изменение с 15.04.2025 | Разброс цен | Дата |
|---|---|---|---|---|
| Квартиры в новостройке | 293 689 руб. | + 38 183 руб. | 17 267 900 ... 73 015 000 руб. за объект | 10.03.26 |
| 262 384 руб. | + 6 879 руб. | 17 267 900 ... 40 731 000 руб. за объект | 24.02.26 | |
| 276 522 руб. | + 21 017 руб. | 17 476 300 ... 24 774 700 руб. за объект | 10.02.26 | |
| Квартиры вторичка | 256 302 руб. | + 25 146 руб. | 10 300 000 ... 45 900 000 руб. за объект | 10.03.26 |
| 253 551 руб. | + 22 395 руб. | 10 200 000 ... 47 200 000 руб. за объект | 24.02.26 | |
| 250 724 руб. | + 19 568 руб. | 11 000 000 ... 40 800 000 руб. за объект | 10.02.26 |
Инфраструктура района
- Начальная школа-детский сад №696
- Детский сад
- Средняя общеобразовательная школа №45 с углубленным изучением математики
- Средняя общеобразовательная школа №555
- Городская поликлиника №111
- Детская поликлиника №75
- Ново-Орловский лесопарк
Материалы по теме
Запишись на онлайн просмотр объекта






