Характеристики
- Количество комнат для продажи/аренды 1
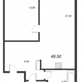
- Количество комнат всего 1
- Этаж 1
- Этажей всего 13
- До метро 11 мин
- До метро, транспортом на автобусе
- Апартаменты нет
- Площадь жилая 12.90 кв. м
- Площадь комнат 12.90 кв. м
- Площадь кухни 21.50 кв. м
- Площадь санузла 4.50 кв. м
- Высота потолков 2.63 м
- квартал 4
- год 2024
- Евро да
- Отделка под ключ (чистовая)
Похожие предложения
Ипотечный калькулятор
График средних цен по продаже однокомнатных квартир в Выборгском районе
| Тип недвижимости | Средн. цена м2 | Изменение с 18.03.2025 | Разброс цен | Дата |
|---|---|---|---|---|
| Квартиры в новостройке | 298 867 руб. | + 60 822 руб. | 6 240 000 ... 15 750 000 руб. за объект | 24.02.26 |
| 290 540 руб. | + 52 495 руб. | 6 410 000 ... 23 589 000 руб. за объект | 29.01.26 | |
| 282 214 руб. | + 44 169 руб. | 6 120 000 ... 14 900 000 руб. за объект | 14.01.26 | |
| Квартиры вторичка | 268 459 руб. | + 37 495 руб. | 5 890 000 ... 18 400 000 руб. за объект | 24.02.26 |
| 251 490 руб. | + 20 526 руб. | 6 000 000 ... 17 000 000 руб. за объект | 10.02.26 | |
| 256 747 руб. | + 25 782 руб. | 5 500 000 ... 17 900 000 руб. за объект | 29.01.26 |
Инфраструктура района
- Прогимназия №130
- Прогимназия №677
- Средняя общеобразовательная школа №145
- Средняя общеобразовательная школа №71
- Городская больница Святой преподобномученицы Елизаветы
- Клиническая больница №122 им. Л.Г. Соколова
- Парк Сосновка
- Сад Бенуа
Материалы по теме
Запишись на онлайн просмотр объекта







