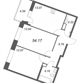
Характеристики
- Количество комнат для продажи/аренды 2
- Количество комнат всего 2
- Этаж 9
- Этажей всего 9
- Апартаменты нет
- Площадь жилая 26.61 кв. м
- Площадь комнат 13.64 кв. м
- Площадь кухни 13.07 кв. м
- Площадь санузла 4.16 кв. м
- Высота потолков 3.00 м
- квартал 4
- год 2027
- Отделка под ключ (чистовая)
Похожие предложения
Ипотечный калькулятор
График средних цен по продаже двухкомнатных квартир в Всеволожском районе
| Тип недвижимости | Средн. цена м2 | Изменение с 18.03.2025 | Разброс цен | Дата |
|---|---|---|---|---|
| Квартиры в новостройке | 175 503 руб. | + 16 114 руб. | 7 233 600 ... 15 289 900 руб. за объект | 10.03.26 |
| 176 255 руб. | + 16 866 руб. | 7 233 600 ... 14 916 600 руб. за объект | 24.02.26 | |
| 180 902 руб. | + 21 513 руб. | 7 338 150 ... 11 292 600 руб. за объект | 10.02.26 | |
| Квартиры вторичка | 160 191 руб. | + 11 342 руб. | 3 900 000 ... 15 098 600 руб. за объект | 10.03.26 |
| 158 380 руб. | + 9 531 руб. | 3 845 000 ... 14 900 000 руб. за объект | 24.02.26 | |
| 174 065 руб. | + 25 216 руб. | 5 500 000 ... 15 300 000 руб. за объект | 10.02.26 |
Материалы по теме
Запишись на онлайн просмотр объекта






