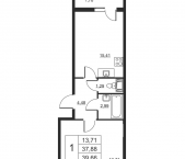
Характеристики
- Количество комнат для продажи/аренды 1
- Количество комнат всего 1
- Этаж 8
- Этажей всего 18
- Наличие балкона да
- Студия да
- Апартаменты нет
- Площадь жилая 19.11 кв. м
- Площадь комнат 19.11 кв. м
- Площадь санузла 4.21 кв. м
- Высота потолков 2.57 м
- квартал 4
- год 2028
- Отделка под ключ (чистовая)
Похожие предложения
Ипотечный калькулятор
График средних цен по продаже студий в Всеволожском районе
| Тип недвижимости | Средн. цена м2 | Изменение с 04.02.2025 | Разброс цен | Дата |
|---|---|---|---|---|
| Квартиры в новостройке | 199 292 руб. | + 27 588 руб. | 3 646 300 ... 7 250 000 руб. за объект | 29.01.26 |
| 197 604 руб. | + 25 900 руб. | 3 646 300 ... 7 250 000 руб. за объект | 14.01.26 | |
| 197 043 руб. | + 25 340 руб. | 3 699 000 ... 7 250 000 руб. за объект | 23.12.25 | |
| Квартиры вторичка | 188 840 руб. | + 15 759 руб. | 2 800 000 ... 6 400 000 руб. за объект | 29.01.26 |
| 185 105 руб. | + 12 024 руб. | 2 720 000 ... 6 355 000 руб. за объект | 14.01.26 | |
| 184 088 руб. | + 11 007 руб. | 2 850 000 ... 6 355 000 руб. за объект | 23.12.25 |
Инфраструктура района
- Детский сад №56
- Детский сад №73
- Средняя общеобразовательная школа №172
- Средняя общеобразовательная школа №68
- Амбулатория
- Детская поликлиника №29
Материалы по теме
Запишись на онлайн просмотр объекта







