Характеристики
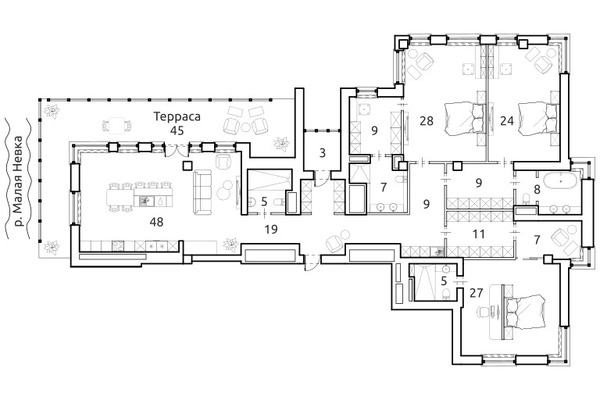
- Количество комнат 3
- Тип дома кирпичный
- Этаж 5
- Этажей всего 5
- Ближайшее метро Крестовский о-в
- До метро 15 мин
- До метро, транспорт пешком
- Наличие телефона нет
- Наличие балкона да
- Наличие лифта отсутствует лифт
- Плита электрическая плита
- Площадь жилая 79.00 кв. м
- Площадь кухни 48.00 кв. м
- Высота потолков 4 м
Restate.ru знает о доме Динамо пр-кт, 2А
- Ввод в эксплуатацию: 1958
- Кадастровый номер: 78:7:3222:3008
- Тип здания: Спортивно-коммерческий центр
- Материал стен: Кирпичные
- Площадь здания: 558.1 кв. м
- Кадастровая стоимость: 11 750 799 руб.
График средних цен по продаже квартир в Петроградском районе
| Тип недвижимости | Средн. цена м2 | Изменение с 18.03.2025 | Разброс цен | Дата |
|---|---|---|---|---|
| Квартиры в новостройке | 729 882 руб. | + 169 353 руб. | 18 187 000 ... 160 796 000 руб. за объект | 24.02.26 |
| 1 213 185 руб. | + 652 656 руб. | 47 215 800 ... 1 072 390 000 руб. за объект | 10.02.26 | |
| 756 621 руб. | + 196 092 руб. | 18 187 000 ... 350 535 000 руб. за объект | 29.01.26 | |
| Квартиры вторичка | 540 677 руб. | + 83 044 руб. | 11 000 000 ... 250 000 000 руб. за объект | 24.02.26 |
| 596 292 руб. | + 138 659 руб. | 12 980 000 ... 151 839 000 руб. за объект | 10.02.26 | |
| 537 135 руб. | + 79 502 руб. | 10 700 000 ... 250 000 000 руб. за объект | 29.01.26 |
Инфраструктура района
- Начальная школа-детский сад
- Апельсин
- Специальная коррекционная школа-интернат №20
- Средняя общеобразовательная школа №35 с углубленным изучением английского языка
- Детская больница №2 Святой Марии Магдалины
- Городская наркологическая больница
- Сад дома Боссе Г.Э.
- Сад Веры Слуцкой
Материалы по теме
Запишись на онлайн просмотр объекта









