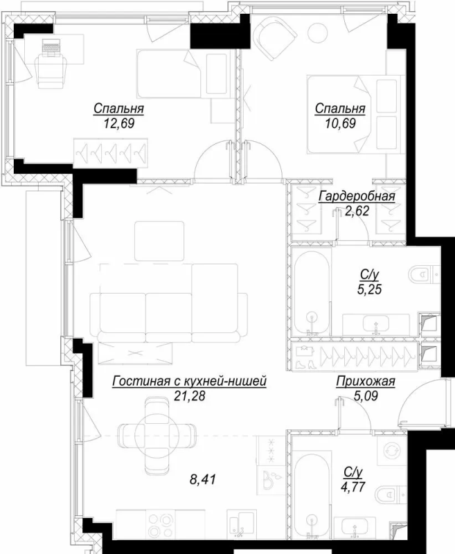
Характеристики
- Количество комнат для продажи/аренды 2
- Количество комнат всего 2
- Этаж 14
- Этажей всего 41
- Апартаменты нет
- Площадь жилая 23.38 кв. м
- Площадь комнат 12.69 кв. м
- Площадь кухни 29.69 кв. м
- Высота потолков 3.30 м
- квартал 3
- год 2024
- Евро да
- Отделка предчистовая
Похожие предложения
Ипотечный калькулятор
График средних цен по продаже двухкомнатных квартир в Раменках
| Тип недвижимости | Средн. цена м2 | Изменение с 21.11.2024 | Разброс цен | Дата |
|---|---|---|---|---|
| Квартиры в новостройке | 671 841 руб. | + 41 649 руб. | 27 293 900 ... 100 137 000 руб. за объект | 11.11.25 |
| 661 711 руб. | + 31 519 руб. | 26 886 800 ... 84 585 100 руб. за объект | 28.10.25 | |
| 691 249 руб. | + 61 057 руб. | 25 917 100 ... 107 982 000 руб. за объект | 14.10.25 | |
| Квартиры вторичка | 591 123 руб. | + 63 598 руб. | 15 800 000 ... 82 000 000 руб. за объект | 11.11.25 |
| 588 714 руб. | + 61 189 руб. | 15 800 000 ... 82 000 000 руб. за объект | 28.10.25 | |
| 595 036 руб. | + 67 511 руб. | 15 800 000 ... 82 000 000 руб. за объект | 14.10.25 |
Инфраструктура района
- Средняя общеобразовательная школа №171
- Радуга
- Утро
- Гимназия №710 им. Народного Учителя СССР В.К. Жудова
- Объединенная больница с поликлиникой при Управлении делами Президента РФ
- Объединенная больница с поликлиникой при Управлении делами Президента РФ
- Ботанический сад МГУ
- Усадьба Трубецких
Материалы по теме
Запишись на онлайн просмотр объекта








