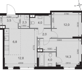
Характеристики
- Количество комнат для продажи/аренды 1
- Количество комнат всего 1
- Этаж 5
- Этажей всего 42
- До метро 15 мин
- До метро, транспортом пешком
- Наличие балкона да
- Апартаменты нет
- Площадь жилая 10.00 кв. м
- Площадь комнат 10.00 кв. м
- Площадь кухни 9.30 кв. м
- Площадь санузла 4.50 кв. м
- Высота потолков 3.17 м
- квартал 3
- год 2027
- Отделка без отделки
Ипотечный калькулятор
График средних цен по продаже однокомнатных квартир в Хорошево-Мневниках
| Тип недвижимости | Средн. цена м2 | Изменение с 26.12.2024 | Разброс цен | Дата |
|---|---|---|---|---|
| Квартиры в новостройке | 727 874 руб. | + 174 042 руб. | 17 353 500 ... 128 600 000 руб. за объект | 09.12.25 |
| 726 966 руб. | + 173 135 руб. | 15 670 500 ... 128 600 000 руб. за объект | 25.11.25 | |
| 681 176 руб. | + 127 344 руб. | 15 406 200 ... 119 298 000 руб. за объект | 11.11.25 | |
| Квартиры вторичка | 554 108 руб. | + 114 718 руб. | 11 500 000 ... 55 848 500 руб. за объект | 09.12.25 |
| 541 432 руб. | + 102 042 руб. | 12 000 000 ... 55 848 500 руб. за объект | 25.11.25 | |
| 532 627 руб. | + 93 237 руб. | 11 250 000 ... 55 848 500 руб. за объект | 11.11.25 |
Инфраструктура района
- Прогимназия
- Морозко
- Гимназия №1567
- Гимназия №1522
- Городская клиническая больница №51
- Городская клиническая больница №51
- Фили
- Фили детский парк
Материалы по теме
Запишись на онлайн просмотр объекта








