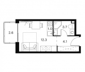
Характеристики
- Количество комнат для продажи/аренды 1
- Количество комнат всего 1
- Этаж 18
- Этажей всего 23
- До метро 4 мин
- До метро, транспортом пешком
- Наличие балкона да
- Студия да
- Апартаменты да
- Площадь жилая 17.20 кв. м
- Площадь комнат 17.20 кв. м
- Площадь санузла 2.60 кв. м
- Высота потолков 2.87 м
- квартал 4
- год 2026
- Отделка под ключ (чистовая)
Похожие предложения
Ипотечный калькулятор
Инфраструктура района
- Центр образования №1459
- Прогимназия №1627
- Гимназия №1554
- Гимназия №1554
- Детская поликлиника №24
- Детская городская поликлиника №71
- Главный ботанический сад им. Н.В. Цицина РАН
- Парк «Отрада»
Материалы по теме
Запишись на онлайн просмотр объекта











