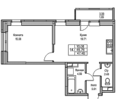
Характеристики
- Количество комнат для продажи/аренды 1
- Количество комнат всего 1
- Этаж 4
- Этажей всего 22
- До метро 15 мин
- До метро, транспортом на автобусе
- Наличие балкона да
- Апартаменты нет
- Площадь жилая 13.90 кв. м
- Площадь комнат 13.90 кв. м
- Площадь кухни 19.06 кв. м
- Площадь санузла 4.04 кв. м
- Высота потолков 2.75 м
- квартал 2
- год 2025
- Евро да
- Отделка под ключ (чистовая)
Похожие предложения
Ипотечный калькулятор
График средних цен по продаже однокомнатных квартир в Приморском районе
| Тип недвижимости | Средн. цена м2 | Изменение с 26.12.2024 | Разброс цен | Дата |
|---|---|---|---|---|
| Квартиры в новостройке | 282 134 руб. | + 20 180 руб. | 6 808 860 ... 16 258 600 руб. за объект | 09.12.25 |
| 280 018 руб. | + 18 064 руб. | 6 477 590 ... 16 142 700 руб. за объект | 25.11.25 | |
| 274 125 руб. | + 12 171 руб. | 6 353 340 ... 15 477 400 руб. за объект | 11.11.25 | |
| Квартиры вторичка | 270 259 руб. | + 27 547 руб. | 6 200 000 ... 25 895 300 руб. за объект | 09.12.25 |
| 267 286 руб. | + 24 574 руб. | 6 290 000 ... 20 100 000 руб. за объект | 25.11.25 | |
| 267 085 руб. | + 24 374 руб. | 6 300 000 ... 23 949 300 руб. за объект | 11.11.25 |
Инфраструктура района
- Парк у стадиона ОАО "УИФК"
Материалы по теме
Запишись на онлайн просмотр объекта





