Характеристики
- Количество комнат 3
- Тип дома кирпично-монолитный
- Этаж 4
- Этажей всего 8
- Ближайшее метро Чкаловская
- До метро 10 мин
- До метро, транспорт пешком
- Наличие балкона да
- Наличие лифта пассажирский лифт
- Санузел раздельный с/у
- Плита электрическая плита
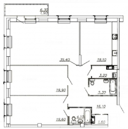
- Площадь жилая 74.90 кв. м
- Площадь комнат 35.00 кв. м
- Площадь кухни 19.10 кв. м
- Площадь ванны 5.30 кв. м
- Площадь прихожей 16.10 кв. м
- Площадь санузла 4.10 кв. м
- Высота потолков 3 м
- Покрытие пола паркет
Ипотечный калькулятор
График средних цен по продаже трехкомнатных квартир в Петроградском районе
| Тип недвижимости | Средн. цена м2 | Изменение с 21.11.2024 | Разброс цен | Дата |
|---|---|---|---|---|
| Квартиры в новостройке | 654 822 руб. | + 135 932 руб. | 38 850 000 ... 186 146 000 руб. за объект | 28.10.25 |
| 645 098 руб. | + 126 208 руб. | 38 887 500 ... 180 708 000 руб. за объект | 14.10.25 | |
| 643 258 руб. | + 124 369 руб. | 38 887 500 ... 177 334 000 руб. за объект | 30.09.25 | |
| Квартиры вторичка | 534 910 руб. | + 134 783 руб. | 14 500 000 ... 149 999 000 руб. за объект | 28.10.25 |
| 536 606 руб. | + 136 479 руб. | 14 500 000 ... 150 000 000 руб. за объект | 14.10.25 | |
| 525 700 руб. | + 125 574 руб. | 14 250 000 ... 149 999 000 руб. за объект | 30.09.25 |
Инфраструктура района
- Человечек
- Начальная школа-детский сад
- Специальная коррекционная школа-интернат №20
- Средняя общеобразовательная школа №27 им. И.А. Бунина с углубленным изучением литературы
- Детская больница №2 Святой Марии Магдалины
- Городская наркологическая больница
- Александровский сад
- Сад Женского Патриотического института
Материалы по теме
Запишись на онлайн просмотр объекта





