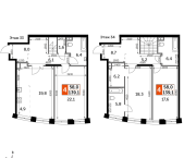
Характеристики
- Количество комнат для продажи/аренды 4
- Количество комнат всего 4
- Этаж 29
- Этажей всего 43
- До метро 15 мин
- До метро, транспортом пешком
- Апартаменты нет
- Площадь жилая 56.80 кв. м
- Площадь комнат 16.90 кв. м
- Площадь кухни 37.50 кв. м
- Высота потолков 3.20 м
- квартал 3
- год 2025
- Евро да
- Отделка без отделки
Похожие предложения
Ипотечный калькулятор
График средних цен по продаже многокомнатных квартир в Хорошево-Мневниках
| Тип недвижимости | Средн. цена м2 | Изменение с 24.10.2024 | Разброс цен | Дата |
|---|---|---|---|---|
| Квартиры в новостройке | 819 207 руб. | + 183 324 руб. | 43 067 600 ... 443 703 000 руб. за объект | 14.10.25 |
| 815 757 руб. | + 179 874 руб. | 41 840 800 ... 443 703 000 руб. за объект | 30.09.25 | |
| 791 780 руб. | + 155 897 руб. | 38 059 300 ... 410 130 000 руб. за объект | 16.09.25 | |
| Квартиры вторичка | 620 073 руб. | + 126 556 руб. | 21 450 000 ... 360 000 000 руб. за объект | 14.10.25 |
| 608 574 руб. | + 115 057 руб. | 21 300 000 ... 360 000 000 руб. за объект | 30.09.25 | |
| 611 309 руб. | + 117 792 руб. | 21 500 000 ... 360 000 000 руб. за объект | 16.09.25 |
Инфраструктура района
- Прогимназия
- Морозко
- Гимназия №1567
- Гимназия №1522
- Городская клиническая больница №51
- Городская клиническая больница №51
- Фили
- Фили детский парк
Материалы по теме
Запишись на онлайн просмотр объекта









