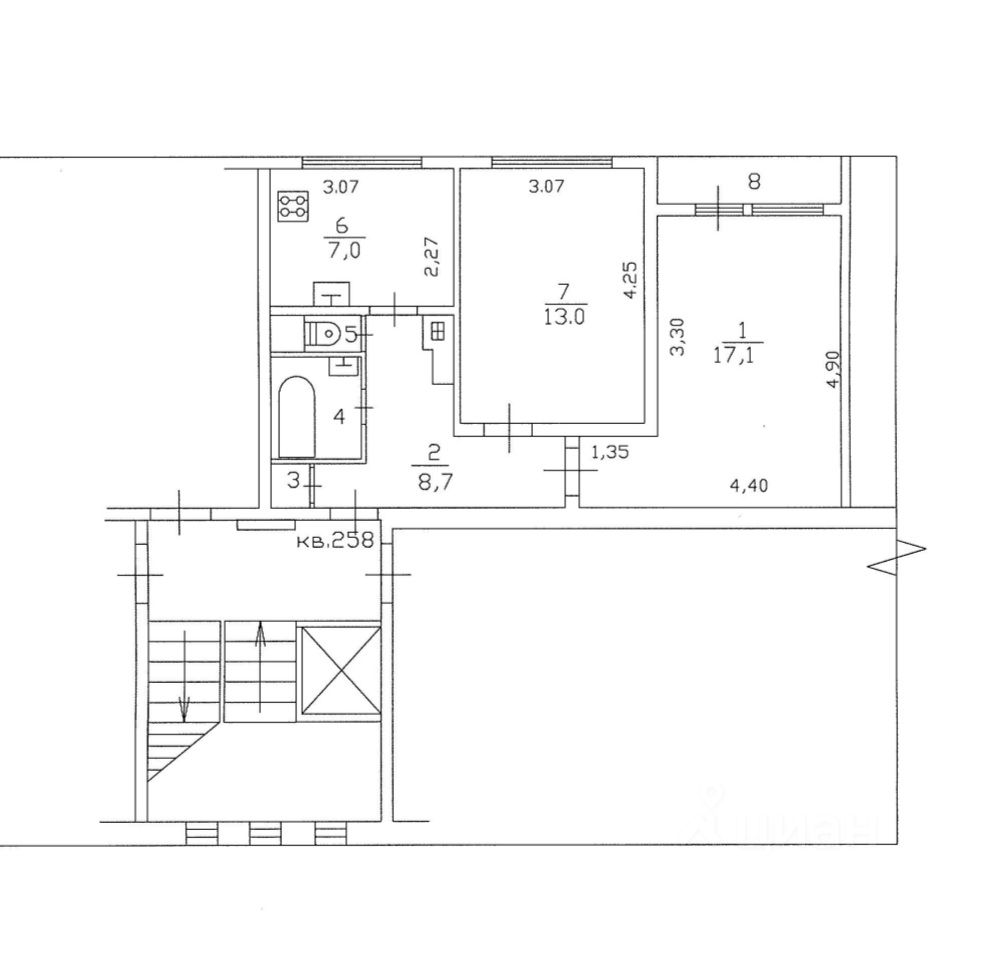
Характеристики
- Количество комнат 2
- Тип дома панельный
- Этаж 9
- Этажей всего 9
- Студия нет
- Апартаменты нет
- Наличие балкона да
- Санузел раздельный с/у
- Площадь жилая 30.10 кв. м
- Площадь кухни 7.00 кв. м
- Отделка под ключ (чистовая)
- Ипотека да
Похожие предложения
Ипотечный калькулятор
График средних цен по продаже двухкомнатных квартир в Всеволожском районе
| Тип недвижимости | Средн. цена м2 | Изменение с 26.12.2024 | Разброс цен | Дата |
|---|---|---|---|---|
| Квартиры в новостройке | 167 444 руб. | + 12 283 руб. | 6 800 000 ... 14 041 500 руб. за объект | 25.11.25 |
| 166 818 руб. | + 11 657 руб. | 6 795 200 ... 14 329 000 руб. за объект | 11.11.25 | |
| 166 775 руб. | + 11 615 руб. | 6 781 560 ... 14 329 000 руб. за объект | 28.10.25 | |
| Квартиры вторичка | 152 529 руб. | + 11 850 руб. | 4 180 000 ... 13 600 000 руб. за объект | 25.11.25 |
| 151 766 руб. | + 11 086 руб. | 4 180 000 ... 13 500 000 руб. за объект | 11.11.25 | |
| 150 417 руб. | + 9 737 руб. | 4 100 000 ... 13 500 000 руб. за объект | 28.10.25 |
Инфраструктура района
- Детский сад №10
- Детский сад №10
- Средняя общеобразовательная школа №6 с углубленным изучением отдельных предметов
- Средняя общеобразовательная школа №3
- Всеволожская центральная районная больница
- Поликлиника №166
Материалы по теме
Запишись на онлайн просмотр объекта






