Характеристики
- Количество комнат для продажи/аренды 1
- Количество комнат всего 1
- Этаж 9
- Этажей всего 22
- До метро 20 мин
- До метро, транспортом пешком
- Наличие балкона да
- Апартаменты нет
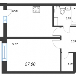
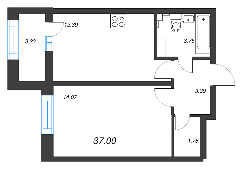
- Площадь жилая 14.07 кв. м
- Площадь комнат 14.07 кв. м
- Площадь кухни 12.39 кв. м
- Площадь санузла 3.75 кв. м
- Высота потолков 2.75 м
- квартал 4
- год 2025
- Отделка предчистовая
Ипотечный калькулятор
График средних цен по продаже однокомнатных квартир в Калининском районе
| Тип недвижимости | Средн. цена м2 | Изменение с 26.12.2024 | Разброс цен | Дата |
|---|---|---|---|---|
| Квартиры в новостройке | 386 071 руб. | + 61 796 руб. | 8 342 040 ... 17 368 800 руб. за объект | 09.12.25 |
| 374 943 руб. | + 50 668 руб. | 8 099 730 ... 16 899 500 руб. за объект | 25.11.25 | |
| 369 498 руб. | + 45 223 руб. | 7 839 140 ... 16 588 000 руб. за объект | 11.11.25 | |
| Квартиры вторичка | 246 519 руб. | + 24 725 руб. | 5 450 000 ... 14 800 000 руб. за объект | 09.12.25 |
| 244 214 руб. | + 22 420 руб. | 5 300 000 ... 14 800 000 руб. за объект | 25.11.25 | |
| 242 133 руб. | + 20 339 руб. | 5 300 000 ... 14 550 000 руб. за объект | 11.11.25 |
Инфраструктура района
- Детский сад №14
- Детский сад №14
- Школа-интернат №28
- Специальная коррекционная общеобразовательная школа №132 для обучающихся с ограниченными возможностями здоровья
- Областная детская клиническая больница
- Клиника военно-полевой терапии
- Сад Смольного института
- Сад на ул. Комсомола
Материалы по теме
Запишись на онлайн просмотр объекта






.jpg)