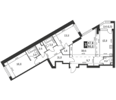
Характеристики
- Количество комнат для продажи/аренды 1
- Количество комнат всего 1
- Этаж 35
- Этажей всего 47
- До метро 15 мин
- До метро, транспортом пешком
- Наличие балкона да
- Апартаменты нет
- Площадь жилая 18.50 кв. м
- Площадь комнат 18.50 кв. м
- Площадь кухни 28.30 кв. м
- Высота потолков 3.00 м
- квартал 1
- год 2024
- Евро да
- Отделка предчистовая
Похожие предложения
Ипотечный калькулятор
График средних цен по продаже однокомнатных квартир в Обручевском районе
| Тип недвижимости | Средн. цена м2 | Изменение с 26.12.2024 | Разброс цен | Дата |
|---|---|---|---|---|
| Квартиры в новостройке | 597 863 руб. | + 59 069 руб. | 18 348 000 ... 41 947 200 руб. за объект | 09.12.25 |
| 579 997 руб. | + 41 202 руб. | 16 226 000 ... 43 505 300 руб. за объект | 25.11.25 | |
| 577 685 руб. | + 38 891 руб. | 16 402 500 ... 42 469 400 руб. за объект | 11.11.25 | |
| Квартиры вторичка | 470 714 руб. | + 82 504 руб. | 13 000 000 ... 31 000 000 руб. за объект | 09.12.25 |
| 470 715 руб. | + 82 505 руб. | 14 000 000 ... 31 000 000 руб. за объект | 25.11.25 | |
| 453 063 руб. | + 64 853 руб. | 12 500 000 ... 28 000 000 руб. за объект | 11.11.25 |
Инфраструктура района
- Начальная школа-детский сад №1850
- Прогимназия
- Гимназия №1507
- Гимназия №1541
- Российская детская клиническая больница
- Российская детская клиническая больница
- Теплостанский парк
- Юго-западный лесопарк
Материалы по теме
Запишись на онлайн просмотр объекта










