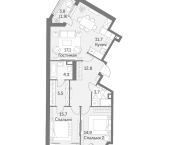
Характеристики
- Количество комнат для продажи/аренды 2
- Количество комнат всего 2
- Этаж 11
- Этажей всего 47
- До метро 15 мин
- До метро, транспортом пешком
- Наличие балкона да
- Апартаменты нет
- Площадь жилая 38.10 кв. м
- Площадь комнат 19.80 кв. м
- Площадь кухни 37.20 кв. м
- Высота потолков 3.00 м
- квартал 1
- год 2024
- Евро да
- Отделка предчистовая
Похожие предложения
Ипотечный калькулятор
График средних цен по продаже двухкомнатных квартир в Обручевском районе
| Тип недвижимости | Средн. цена м2 | Изменение с 26.12.2024 | Разброс цен | Дата |
|---|---|---|---|---|
| Квартиры в новостройке | 553 743 руб. | + 51 906 руб. | 33 801 000 ... 63 771 400 руб. за объект | 09.12.25 |
| 549 701 руб. | + 47 864 руб. | 31 185 000 ... 77 940 400 руб. за объект | 25.11.25 | |
| 549 536 руб. | + 47 699 руб. | 30 713 900 ... 77 940 400 руб. за объект | 11.11.25 | |
| 543 777 руб. | + 41 941 руб. | 29 878 200 ... 77 940 400 руб. за объект | 28.10.25 | |
| 533 532 руб. | + 31 696 руб. | 29 700 000 ... 61 597 600 руб. за объект | 14.10.25 | |
| 538 114 руб. | + 36 277 руб. | 29 592 500 ... 77 989 500 руб. за объект | 30.09.25 |
Инфраструктура района
- Начальная школа-детский сад №1850
- Прогимназия
- Гимназия №1507
- Гимназия №1541
- Российская детская клиническая больница
- Российская детская клиническая больница
- Теплостанский парк
- Юго-западный лесопарк
Материалы по теме
Запишись на онлайн просмотр объекта










