Характеристики
- Количество комнат 2
- Тип дома кирпично-монолитный
- Этаж 6
- Этажей всего 13
- Ближайшее метро Кировский з-д
- До метро 34 мин
- До метро, транспорт на автобусе
- Наличие телефона нет
- Наличие балкона да
- Наличие лифта пассажирский лифт
- Санузел раздельный с/у
- Плита электрическая плита
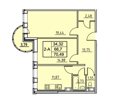
- Площадь жилая 34.32 кв. м
- Площадь кухни 11.87 кв. м
- Высота потолков 2.77 м
- Переуступка да
- Отделка без отделки
- Вид из окон на улицу
Ипотечный калькулятор
График средних цен по продаже двухкомнатных квартир в Кировском районе
| Тип недвижимости | Средн. цена м2 | Изменение с 18.02.2025 | Разброс цен | Дата |
|---|---|---|---|---|
| Квартиры вторичка | 210 740 руб. | + 25 737 руб. | 6 500 000 ... 22 500 000 руб. за объект | 10.02.26 |
| 208 918 руб. | + 23 915 руб. | 6 600 000 ... 22 500 000 руб. за объект | 29.01.26 | |
| 208 770 руб. | + 23 766 руб. | 6 500 000 ... 21 690 000 руб. за объект | 14.01.26 | |
| 207 578 руб. | + 22 574 руб. | 6 500 000 ... 23 000 000 руб. за объект | 23.12.25 | |
| 205 054 руб. | + 20 051 руб. | 6 500 000 ... 21 500 000 руб. за объект | 09.12.25 | |
| 200 105 руб. | + 15 102 руб. | 6 150 000 ... 20 600 000 руб. за объект | 25.11.25 |
Инфраструктура района
- Начальная общеобразовательная школа №615
- Начальная школа №36
- Специальная коррекционная школа-интернат №2 для обучающихся
- Средняя общеобразовательная школа №388
- Городская больница №14
- Городская Покровская больница
- Сад Дачи Е. Р. Дашковой «Кирьяново»
- Детский парк имени 9 января
Материалы по теме
Запишись на онлайн просмотр объекта





