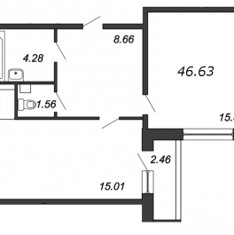
Характеристики
- Количество комнат для продажи/аренды 1
- Количество комнат всего 1
- Этаж 21
- Этажей всего 24
- До метро 30 мин
- До метро, транспортом на автобусе
- Наличие балкона да
- Апартаменты нет
- Площадь жилая 15.89 кв. м
- Площадь комнат 15.89 кв. м
- Площадь кухни 15.01 кв. м
- Площадь санузла 4.28 кв. м
- Высота потолков 2.72 м
- Дом сдан да
- квартал 4
- год 2022
- Евро да
- Отделка предчистовая
Ипотечный калькулятор
График средних цен по продаже однокомнатных квартир в Невском районе
| Тип недвижимости | Средн. цена м2 | Изменение с 26.12.2024 | Разброс цен | Дата |
|---|---|---|---|---|
| Квартиры в новостройке | 289 936 руб. | + 37 270 руб. | 5 030 960 ... 14 598 900 руб. за объект | 09.12.25 |
| 286 724 руб. | + 34 059 руб. | 5 028 160 ... 14 400 100 руб. за объект | 25.11.25 | |
| 287 444 руб. | + 34 778 руб. | 4 962 500 ... 14 234 300 руб. за объект | 11.11.25 | |
| Квартиры вторичка | 248 566 руб. | + 32 826 руб. | 5 200 000 ... 16 000 000 руб. за объект | 09.12.25 |
| 245 360 руб. | + 29 620 руб. | 5 200 000 ... 15 950 000 руб. за объект | 25.11.25 | |
| 242 794 руб. | + 27 053 руб. | 5 200 000 ... 16 300 000 руб. за объект | 11.11.25 |
Инфраструктура района
- Детский сад №12
- Детский сад №126
- Средняя общеобразовательная школа №574
- Средняя общеобразовательная школа №571 с углубленным изучением английского языка
- Городская поликлиника №77
- Городская поликлиника №8
- Парк имени С. А. Есенина
Материалы по теме
Запишись на онлайн просмотр объекта










