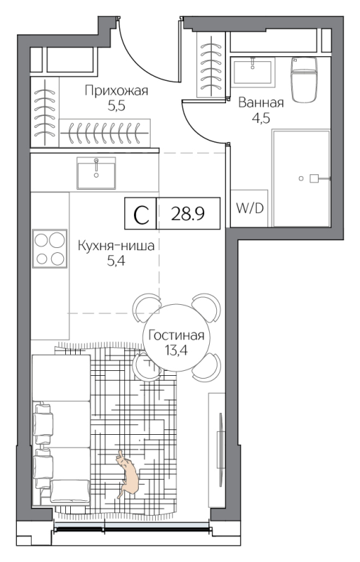
Характеристики
- Количество комнат для продажи/аренды 1
- Количество комнат всего 1
- Этаж 6
- Этажей всего 27
- До метро 20 мин
- До метро, транспортом пешком
- Студия да
- Апартаменты нет
- Площадь жилая 13.40 кв. м
- Площадь комнат 13.40 кв. м
- Площадь кухни 5.40 кв. м
- Площадь санузла 4.50 кв. м
- Высота потолков 3.00 м
- квартал 3
- год 2027
- Отделка без отделки
Похожие предложения
Ипотечный калькулятор
Инфраструктура района
- Средняя общеобразовательная школа №494 с дошкольным отделением
- Владимира
- Гимназия №1527
- Гимназия №1527
- Городская клиническая больница №79
- Городская клиническая больница №79
- Парк «Печатники» (Печатниковский парк)
- Нагатинская пойма
Материалы по теме
Запишись на онлайн просмотр объекта








