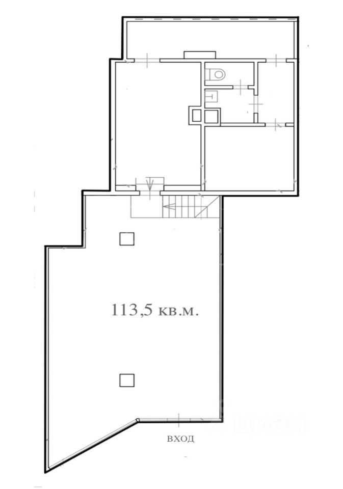
Характеристики
- Этаж 1
- Этажей всего 22
- Ближайшее метро Строгино
- Площадь комнат 113.00 кв. м
Похожие предложения
Ипотечный калькулятор
График средних цен по аренде коммерческой недвижимости в Строгино
| Тип недвижимости | Средн. цена м2 | Изменение с 04.03.2025 | Разброс цен | Дата |
|---|---|---|---|---|
| Торговые помещения | 3 739 руб. | + 369 руб. | 35 000 ... 1 200 000 руб. за объект | 11.11.25 |
| 4 108 руб. | + 738 руб. | 297 522 ... 1 200 000 руб. за объект | 28.10.25 | |
| 5 982 руб. | + 2 612 руб. | 449 999 ... 1 200 000 руб. за объект | 30.09.25 | |
| 5 656 руб. | + 2 286 руб. | 150 000 ... 1 200 000 руб. за объект | 16.09.25 | |
| 5 656 руб. | + 2 286 руб. | 150 000 ... 1 200 000 руб. за объект | 02.09.25 | |
| 5 656 руб. | + 2 286 руб. | 150 000 ... 1 200 000 руб. за объект | 05.08.25 |
Инфраструктура района
- Гимназия №1519 с дошкольным отделением
- Гимназия №1519 с дошкольным отделением
- Гимназия №1519 с дошкольным отделением
- Детская поликлиника №58
- Детская поликлиника №109
- Серебряный Бор
Материалы по теме
Запишись на онлайн просмотр объекта



