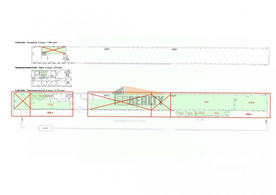
Характеристики
- Этажей всего 1
- Ближайшее метро Андроновка
Похожие предложения
Ипотечный калькулятор
Инфраструктура района
- Центр образования №1421
- Начальная школа-детский сад №1645
- Yes
- City & Guilds
- Центральная клиническая больница №4
- Центральная клиническая больница №4
- Перовский
- Измайловский
Материалы по теме
Запишись на онлайн просмотр объекта






