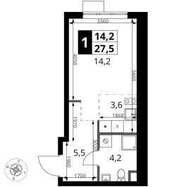
Характеристики
- Количество комнат для продажи/аренды 1
- Количество комнат всего 1
- Этаж 3
- Этажей всего 18
- До метро 10 мин
- До метро, транспортом на автобусе
- Студия да
- Апартаменты нет
- Площадь жилая 14.20 кв. м
- Площадь комнат 14.20 кв. м
- Площадь кухни 3.60 кв. м
- Площадь санузла 4.00 кв. м
- Высота потолков 2.72 м
- квартал 1
- год 2026
- Отделка без отделки
Похожие предложения
Ипотечный калькулятор
График средних цен по продаже студий в Новомосковском Административном округе
| Тип недвижимости | Средн. цена м2 | Изменение с 21.11.2024 | Разброс цен | Дата |
|---|---|---|---|---|
| Квартиры в новостройке | 416 206 руб. | + 76 597 руб. | 7 378 680 ... 14 236 300 руб. за объект | 11.11.25 |
| 411 698 руб. | + 72 089 руб. | 7 211 680 ... 13 952 900 руб. за объект | 28.10.25 | |
| 399 242 руб. | + 59 634 руб. | 6 903 540 ... 13 827 200 руб. за объект | 14.10.25 | |
| 400 265 руб. | + 60 656 руб. | 6 751 970 ... 13 866 900 руб. за объект | 30.09.25 | |
| 396 179 руб. | + 56 571 руб. | 6 605 000 ... 13 753 400 руб. за объект | 16.09.25 | |
| 388 246 руб. | + 48 638 руб. | 6 583 160 ... 11 621 000 руб. за объект | 02.09.25 |
Инфраструктура района
- Начальная школа-детский сад №1616
- Начальная школа-детский сад №1657
- Гимназия №1532
- Гимназия №1507
- Детская поликлиника №97
- Городская поликлиника №94
Материалы по теме
Запишись на онлайн просмотр объекта





