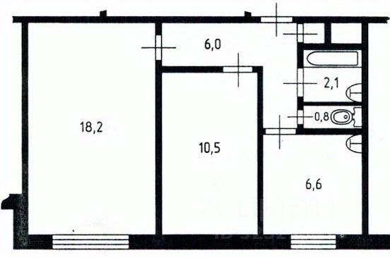
Характеристики
- Количество комнат 2
- Тип дома панельный
- Этаж 7
- Этажей всего 9
- Студия нет
- Апартаменты нет
- Санузел раздельный с/у
- Площадь жилая 28.50 кв. м
- Площадь кухни 6.60 кв. м
- Отделка без отделки
- Вид из окон на улицу
- Ипотека да
Похожие предложения
Ипотечный калькулятор
График средних цен по продаже двухкомнатных квартир в Раменском городском округе
| Тип недвижимости | Средн. цена м2 | Изменение с 21.11.2024 | Разброс цен | Дата |
|---|---|---|---|---|
| Квартиры в новостройке | 139 094 руб. | - 44 334 руб. | 7 780 080 ... 14 498 100 руб. за объект | 11.11.25 |
| 140 243 руб. | - 43 184 руб. | 6 383 610 ... 15 022 300 руб. за объект | 28.10.25 | |
| 140 199 руб. | - 43 228 руб. | 6 383 610 ... 15 022 300 руб. за объект | 14.10.25 | |
| Квартиры вторичка | 138 342 руб. | + 3 649 руб. | 3 800 000 ... 13 475 000 руб. за объект | 11.11.25 |
| 138 210 руб. | + 3 517 руб. | 3 800 000 ... 13 470 000 руб. за объект | 28.10.25 | |
| 137 865 руб. | + 3 172 руб. | 3 700 000 ... 12 999 000 руб. за объект | 14.10.25 |
Инфраструктура района
- Гимназия №7
- Гимназия №2
- Раменская центральная районная больница
- Раменская центральная районная больница
Материалы по теме
Запишись на онлайн просмотр объекта









